Exclusive promotion of luxury homes with private pool and incredible sea views. This development will consist of townhouses with 3 or 4 bedrooms and 3 bathrooms. The houses have three floors and a roof terrace. The project stands out for the high qualities, the luxurious finishes and the glass facades of 6 meters high.
The distribution in the three houses is very similar, varying in some aspects.
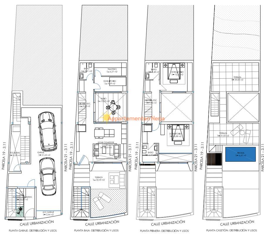
The ground floor is a garage for two cars, from where you go up to the mezzanine which can be used as an additional bedroom. On the first floor we find a spacious living room with kitchenette, a bedroom, a bathroom, patio and a large terrace of between 30 and 40 m2 with spectacular sea views. Going up to the second floor there are two very spacious bedrooms, one with bathroom en suite and another bathroom. The roof terrace is a large terrace of approximately 40 m2 with private pool to enjoy the sun all day and the incredible panoramic views of the sea and the mountains. The houses also have a garden of 30m2.
The houses will have solar panels for hot water and electricity High quality materials will be applied: flooring of large format porcelain pieces, lacquered aluminum carpentry, double glazing and automatic blinds, aluminum and laminated glass terrace railings, automated garage door, coating of the bathrooms of first quality ceramic, pre-installation of recharging system for electric cars in garage, aerothermal installed, Full kitchen included. The houses will have type A energy rating, so they will be exceptionally efficient.
Possibility of adding extras such as an elevator, underfloor heating or converting the house into a 'Passivhaus'.
Construction begins in September 2023 and delivery will be between the end of 2024 and the beginning of 2025.

General
  • Terraced
  • 4 Bedrooms
  • 3 bathrooms
  • 3 Built-in wardrobes
  • 1 Terrace
  • Storeroom
  • Private garage

Surfaces
  • Plot: 150 m2
  • Built: 73 m2

Status
  • Under construction

Equipment
  • Pool
  • gardens
  • Fitted kitchen

Qualities
  • Aluminum carpentry

553.500 €

  • m2 built: 7.582 €
  • m2 plot: 3.690 €
CALIFICACIÓN ENERGÉTICA

Consumo energía
kW h / m2 año
Emisiones CO2
kg CO2 / m2 año
A
B
C
D
E
F
G
IN PROCESS IN PROCESS

Torrox (Málaga)
Torrox Costa

Location
  • Residential area
  • Exterior
  • In coastal area
  • Southwest orientation

Close to
  • Green spaces


   Call

Use of cookies

We use our own and third-party cookies to improve the experience on our website and for analytical purposes. Some are necessary for the proper functioning of the website, others you can configure or reject them. You can see more information on the Cookies policy